マンション
大阪府大阪市浪速区稲荷1丁目
- 画像
- パノラマ
- 動画
- マップ
物件概要
| 物件種別 | マンション | ||||
|---|---|---|---|---|---|
| 物件名 | 大阪府大阪市浪速区稲荷1丁目 | ||||
| 所在地 | 大阪府大阪市浪速区稲荷1丁目10-19 | ||||
| 交通機関 |
OsakaMetro千日前線 桜川駅 徒歩7分 JR関西本線 JR難波駅 徒歩7分 OsakaMetro四つ橋線 なんば駅 徒歩11分 |
||||
| 賃料 | 11.2万円 | 管理費/共益費 | 10,000円 | ||
| 敷金/保証金 | 無 | 礼金 | 1ヶ月 | ||
| 敷引/償却 | - | 更新区分 | 無 | ||
| 保険料 | 18,000円/2年 | 保証人 | 指定なし | ||
| 保証会社 |
必加入 / エポス / 初回保証料:- / 月額保証料:- 備考:個人初回20% 更新料1%/月 、法人初回50% 更新料10,000円/年 ※総賃料15万円以上の時更新年1.4万円 ※大手法人で加入不可の時敷金賃料1ヶ月分要 ・早期解約違約金:共込賃料1ヶ月分(1年未満) ※大手法人で早期解約違約設定不可の場合、礼金1ヶ月分要 |
||||
| 築年月 | 2022年12月(築3年) | 総戸数 | 112戸 | ||
| 所在階/階建 | 11階/15階建 | 構造 | RC | ||
| エネルギー消費性能 | - | 断熱性能 | - | ||
| 目安光熱費 | - | 間取り | 1DK | ||
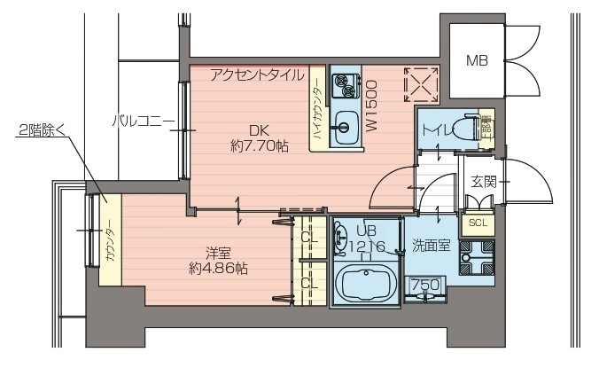
| 間取り詳細 | DK7.74 洋室4.31 | 専有面積 | 30.72㎡ | ||
| 契約形態 | 普通契約/2年 | 入居可能日 | 2026年4月上旬 | ||
| 駐車場 | 空無 | 取引態様 | 先物 | ||
| 備考 | |||||
- 情報登録日:2026/03/06
- 情報更新日:2026/03/12
- 次回更新予定日:2026/03/26
設備・特徴
| バス・トイレ | 浴槽、シャワー、追い焚き、浴室乾燥機、温水洗浄便座、シャンプードレッサー | ||
|---|---|---|---|
| キッチン | システムキッチン、2口コンロ、コンロ設置済 | ||
| 設備・サービス | 防犯カメラ、宅配ボックス、TVモニター付きインターホン、オートロック、ディンプルキー、照明器具、ベランダ・バルコニー、下駄箱、エアコン、エアコン1台、冷房、24H換気システム、BS、CS、LAN、無線LAN、インターネット使用料無料 | ||
| その他・特徴 | 二人入居可、IT重説 対応物件、オンライン内見可、オンライン相談可、ペット相談、フローリング、公共下水、公営水道、南向き、都市ガス | ||
周辺情報
| 周辺施設 |
【スーパー】ライフ塩草店:465m 【郵便局】浪速稲荷郵便局:49m 【スーパー】コーヨー難波湊町店:573m 【ドラッグストア】コクミンドラッグオーキャット店:583m 【病院】医療法人寿会富永病院:559m |
||
|---|---|---|---|
お問い合わせ
UTクリエイト本店
所在地/大阪府大阪市中央区南船場4-12-8 関西心斎橋ビル4F
営業時間/10:00~19:00 定休日/水曜日
お問い合わせ番号:13952560
06-6125-5364



